A converted barn. A modern building with metal clad roof and large glass sliding doors with the living space visable.

Modern Barn Conversion in AONB

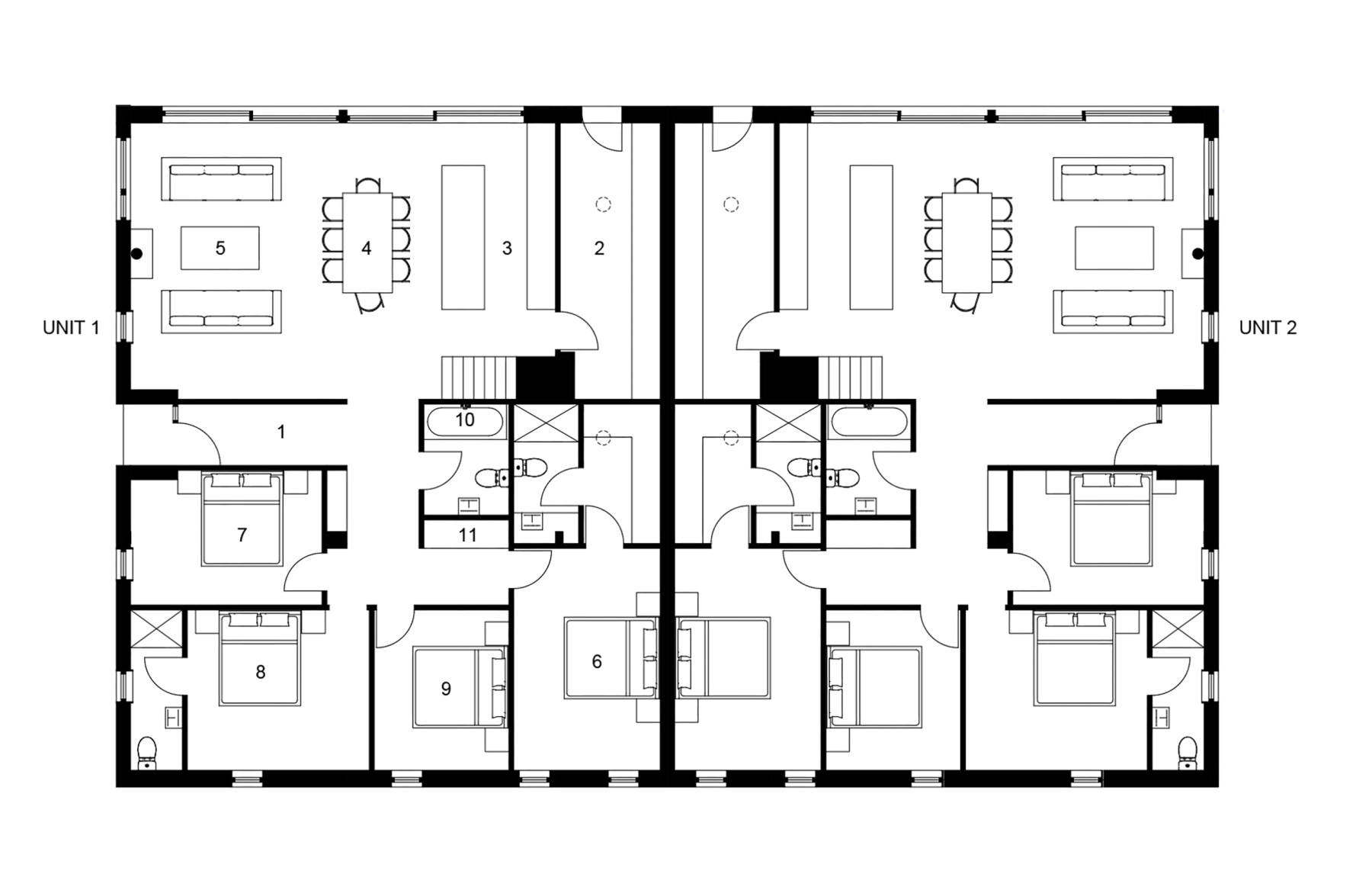
Set within an expansive estate in an Area of Outstanding Natural Beauty (AONB), this project involved the transformation of a redundant barn structure into two bespoke, four-bedroom dwellings.

The barn conversion showcases the power of minimalism and the inherent elegance of utilitarian structures. Marrying the vernacular architecture of Dorset with contemporary sensibilities, the barn is clad black timber, punctuated by a sleek zinc roof – elements that echo the aesthetic of practical agricultural structures to seamlessly blend with the rural surroundings.

View all projects Next project Previous project
View all projects No more projects No previous projects

Project sectors