DMW London Hammersmith Apartment Architecture

Thames Reach Remodelling London Penthouse

Thames Reach stands adjacent to the River Thames, housed within an original building designed by the world renowned architect, Richard Rogers (Lord Rogers of Riverside). This riverside apartment, constructed between 1986-1988, enjoys panoramic views of both Harrods Furniture Depository and Hammersmith Bridge.

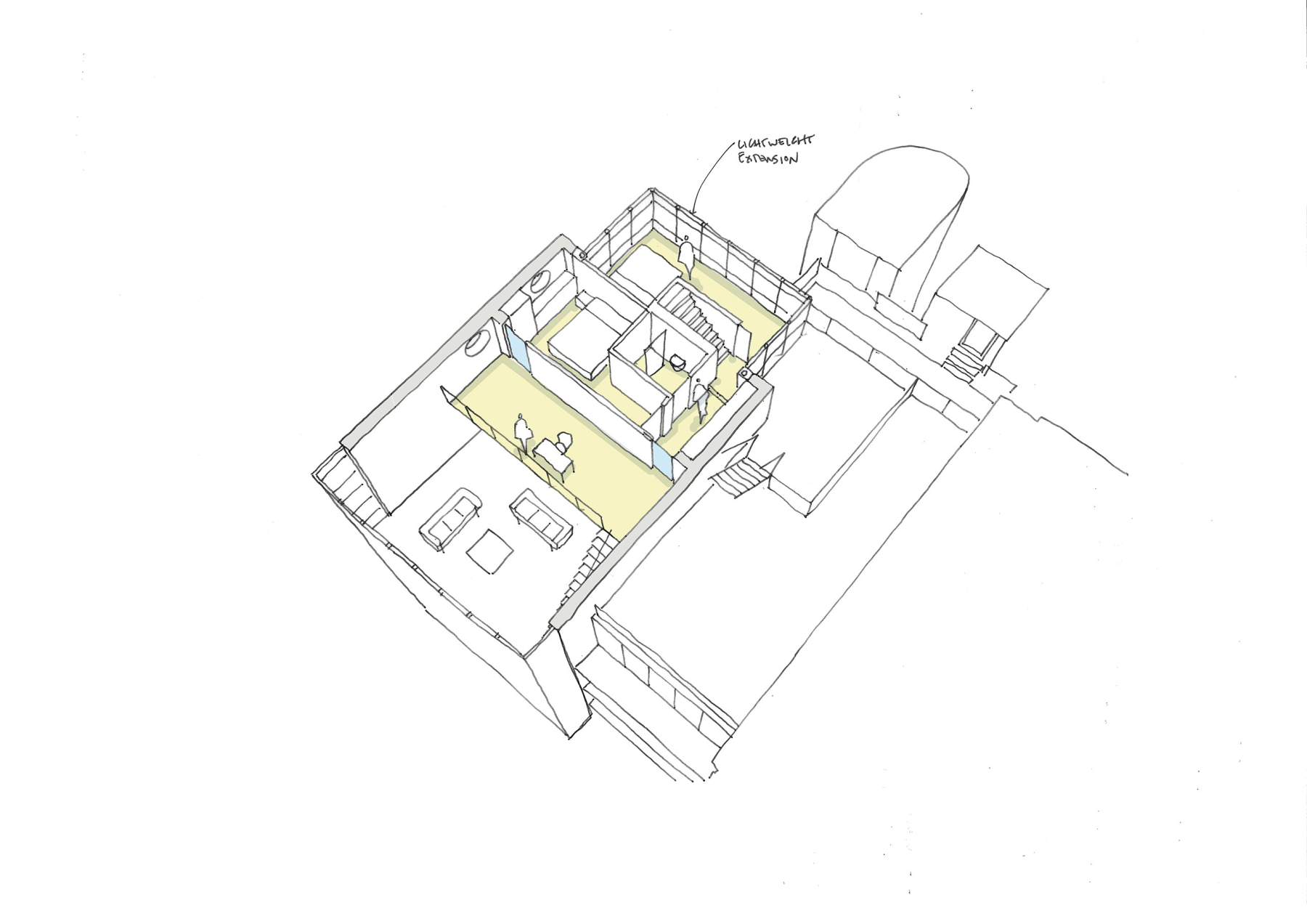
The brief called for a comprehensive transformation of the existing apartment, with a lightweight glazed structure introduced at the upper level. The principal challenge lay with a restrictive covenant which prevented any penetrations being made through the roof or new structures being introduced on the existing parapet walls.

The design solution introduced two interconnecting boxes set at first and second floors. The point of overlap created the opportunity to introduce a new staircase which provides the vertical circulation required, whilst also fully respecting and responding to the restrictions of the original lease.

  • Hammersmith, London

  • Homes
View all projects No more projects Previous project
View all projects No more projects No previous projects

Project sectors