The Modern Bungalow

Award-Winning Single Storey Private Home

The "Modern Bungalow" was conceived as a light and efficient dwelling that with the surrounding landscape. DMW designed the home with a focus on transparency, natural light, and a seamless connection between interior spaces and the natural environment.

Project Director: Ryan Martin

Project Lead: Mark Christopher

Structural Engineer: Smith Foster

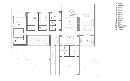
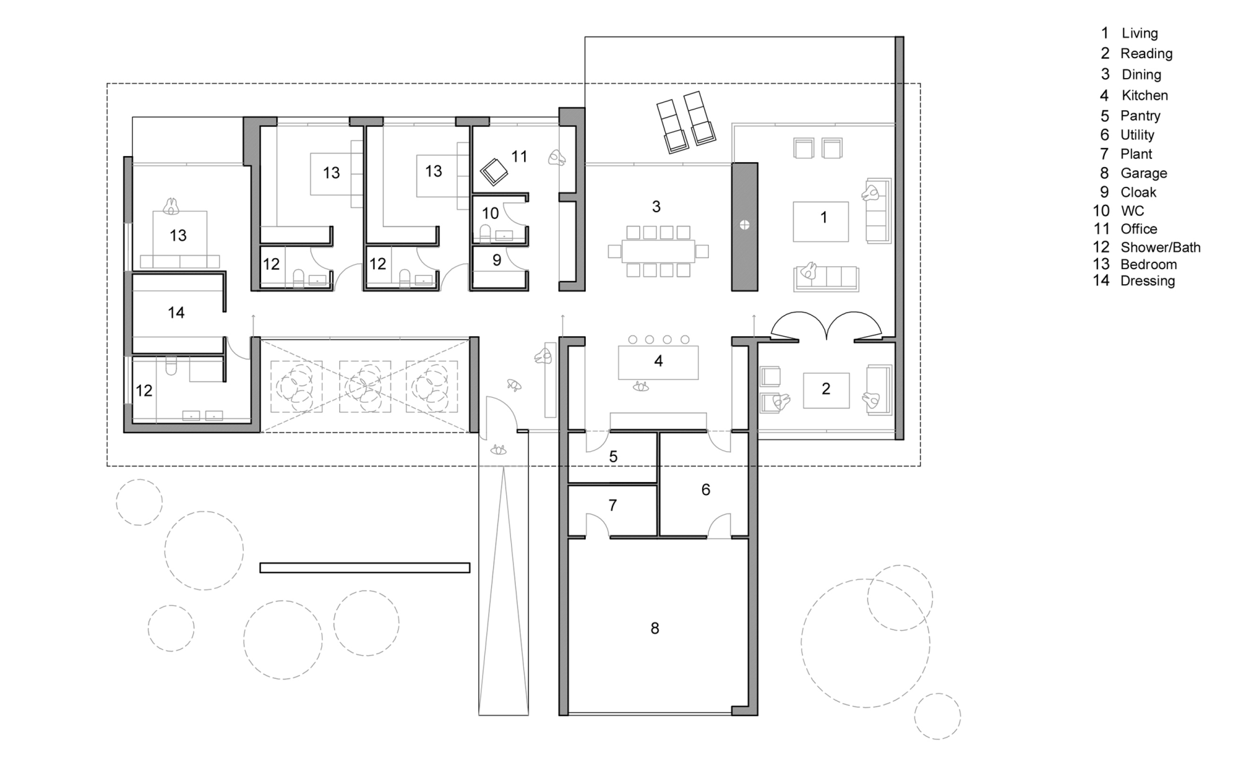
The core idea behind the dwelling was to create a series of living spaces unified under a single cantilevered roof, with the use of perpendicular external brick walls that extend into the landscape, providing both structural integrity and defining the spatial separation of the internal space. Constructed using long, Roman-format bricks that resemble local Purbeck limestone, the selected bricks offer a more refined aesthetic when used in large quantities. 

To maximise views across the landscape and bring in abundant natural light, large areas of glazing were integrated into the design. These transparent infills allow the dwelling to maintain an open, airy feel while enhancing the connection to the outside environment.

The unifying feature of the house is a low-pitched zinc roof. Zinc is a durable material that ages gracefully, providing a delicate rhythmic pattern to the roof surface. Its soft, natural hue complements the tones of the bricks and the surrounding greenery.

The dwelling was designed with a strong focus on energy efficiency and sustainability, following passive solar principles. The building’s orientation and design ensure that, during the colder winter months, the sun’s warmth is allowed to penetrate deep into the house. Conversely, during the heat of the midday summer sun, the generous cantilevered roof provides shade, preventing overheating of the interior spaces.

The project has received recognition for its innovative design and sustainable approach being featured in Grand Designs Magazine. The project was awarded the title of Individual House Winner at the prestigious Schüco Excellence Awards, an architectural accolade for the studio.

Do you have a project in mind or would you like to understand more about the architectural process? We would be delighted to hear from you.