Ton Barn replacement dwelling Dorset DMW Architects

Ton Barn Passive House

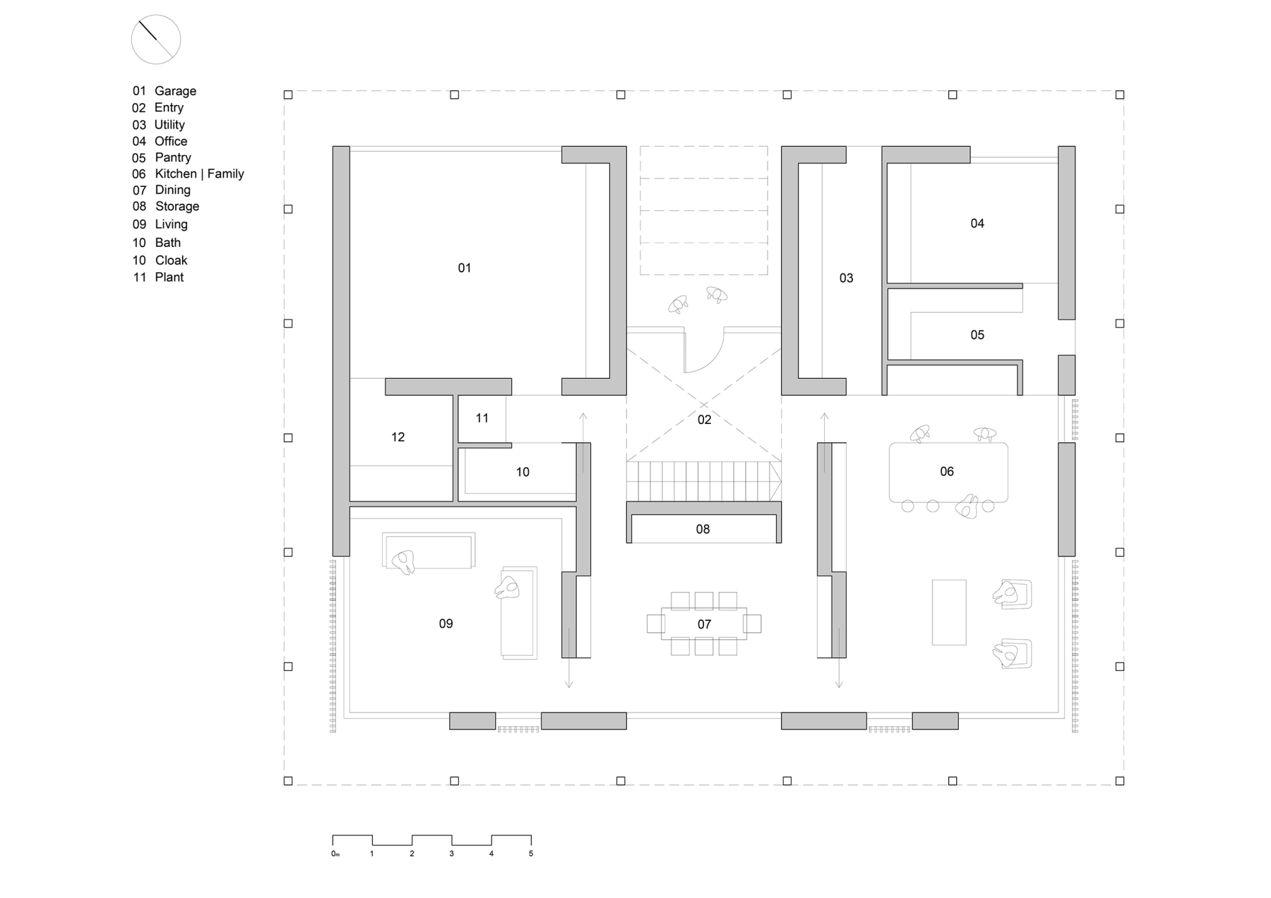
This new barn-style dwelling in the Cranborne Chase and West Wiltshire Downs AONB is an environmentally conscious design that seamlessly integrates with the rural landscape. To overcome significant planning constraints, DMW collaborated closely with the client, local authority, and other agencies to create an appropriate and exceptional design.

One of the key design factors was the integration of the dwelling with the AONB and natural surroundings. The building was required to blend with the landscape, preserving the beauty and integrity of the AONB, nearby Conservation Area, and open rural countryside. Aesthetically, the proposed dwelling reflects a barn-like typology commonly seen in the open rural landscape.

Pre-patinated and weathered facing materials enhance its integration while ensuring durability and low maintenance requirements.

View all projects Next project Previous project
View all projects No more projects No previous projects

Project sectors